8 195 000 kr
Utgångspris
3 rok
Lägenhet
6 260 kr/månad
Brf Hotell Båstad - Magnifikt boende i Nobels anda mitt i byn
Äntligen är det tid för vackra Hotell Båstad att förädlas och bli Båstads i särklass mest eleganta boende. Med fokus på trygghet, personlig touch och detaljer kommer det anrika hotellet omsorgsfullt förvandlas till 12 exklusiva lägenheter i absolut högklass. Välkomna till Båstads mest spännande projekt 2018!
Nu är ståtliga Hotell Båstad på gång att förvandlas till 12 stycken unika bostadsrätter med storslagen vy över Laholmsbukten. Sedan begynnelsen i början av 1900-talet har Hotellet haft såväl kungligheter som celebriteter på besök. Nu är det tid för förändring. Hotellet kommer att totalrenoveras och det finns möjlighet att förvärva lägenheter med 2 till 4 rum och med ytor från ca 100 kvm upp till 162 kvm. BRF Hotell Båstad är beläget i hjärtat av vackra Båstad med privat poolområde för dem boende och promenadavstånd till allt som önskas upplevas; salta bad, långa sandstränder, hamn och shopping.
För att förena och fullborda fastighetens hundraåriga historia har de tre syskonen Hansson som driver stadshotellet i Ljungby tillsammans med byggföretaget LJ Bygg tagit över ägandet för att bygga om Hotellet i omsorgsfull och karaktäristisk stil. För att öka på bekvämligheten så finns både förråd och parkeringsplats till alla lägenheter. Som köpare till en lägenhet ges det möjlighet att vara med att välja inredning, där alternativen är flera. Finns drömmen om en egen vinkällare eller möjligtvis ett bibliotek så går drömmen att förverkliga i Hotell Båstad. Mellan vardagsrum och kök är planlösningen öppen. Ljuset och charmen går det inte ta miste på och bekvämligheter såsom både tvätt- och diskmaskin ingår i alla lägenheter. I och med totalombyggnaden kommer hissar att installeras, så även golvvärme och helkaklade badrum. Hotell Båstad ger tillvaron en tydlig guldkant på tillvaron.
Välkommen till Båstads i särklass mest eleganta projekt där man som boende får ett bekvämt liv i centrala Båstad i exklusiv anda med otrolig charm och karaktär i en trygg miljö.
Kökstyp
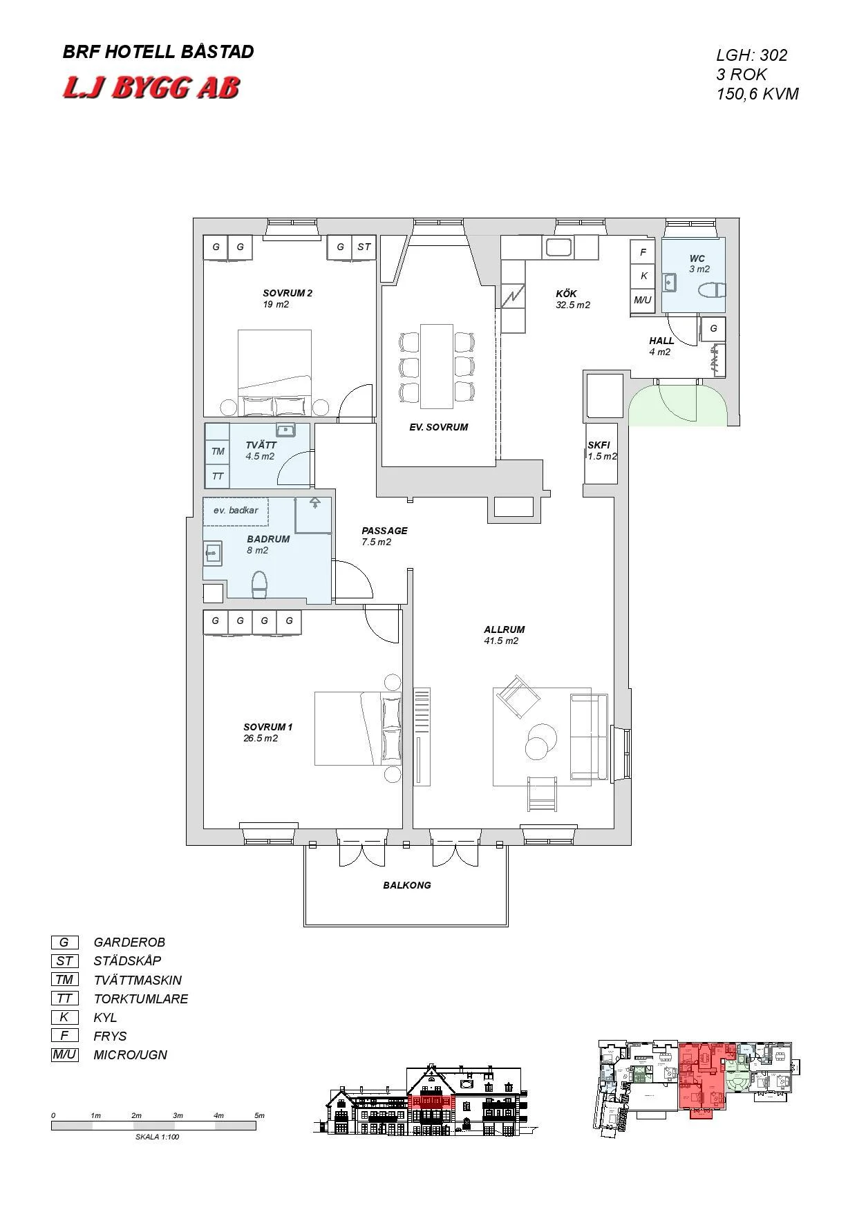
Lägenhet 302
Kungasviten - en präktig lägenhet med påtaglig känsla av historia och mycket karaktär. Förutom den historiska känslan som erbjuds genom fantastiska innertak och originaldetaljer som eldstad och historiska attribut njuter man här av den magnifika utsikten. Genom de stora dörrpartier från både allrum och det stora master sovrummet om 26 kvm når man den generösa balkongen.
Stort kök med matplats, ett generöst badrum med möjlighet till både dusch och badkar, gästtoalett och separat tvättrum.
__________________________________
Övrig information
Fakta om bostaden
VA, Sopor samt skötsel av poolområde etc.
Byggnad
Föreningen har en privat tempererad pool på innergården med stensatt område runt omkring med plats för härliga bad, poolhäng och umgänge.
Våning/hiss
BALKONG, UTEPLATS, & BILPLATS
Energideklaration
Fakta om föreningen







