2 650 000 kr
Utgångspris
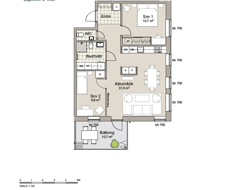
3 rok
Lägenhet
4 297 kr/månad
Ett soligt hem med rymd och vyer över området mot Hallandsåsen.
Ljus och välplanerad 3 RoK på fjärde våningen i Brf Parklyckan. Generös balkong om drygt 10 kvm i sydöstläge med fin utsikt över området och Hallandsåsen. Här bor du modernt, bekvämt och med närhet till både hav, natur och kommunikationer.
Sol, ljus & utsikt
Denna trivsamma och genomtänkta 3-rumslägenhet på fjärde våningen i Brf Parklyckan erbjuder ett hem som kombinerar ljus, komfort och ett attraktivt läge i Båstad. Balkongen om drygt 10 kvm i sydöstläge bjuder på härlig morgonsol och öppna vyer över området med Hallandsåsen som vacker fond.
Den öppna planlösningen mellan kök och vardagsrum skapar en social och inbjudande yta med direkt access till balkongen – perfekt för både vardag och umgänge. Två väl tilltagna sovrum ger flexibilitet för familj, gästrum eller hemmakontor. Badrummet är stilrent och funktionellt med tvättmöjligheter, och bostaden erbjuder god förvaring.
I Parklyckan bor du i ett modernt och välplanerat boende med hiss, garage i källarplan och närhet till tågstation, centrala Båstad, havet och den omgivande naturen. Ett hem för dig som söker både livskvalitet och bekvämlighet i ett av Båstads mest attraktiva områden.
Kökstyp
Övrig information
Fakta om bostaden
månadsavgiften är exkl. hushållsel, Bredband och hemförsäkring.
Byggnad
Våning/hiss
BALKONG, UTEPLATS, & BILPLATS
Energideklaration
TV och bredband
Fakta om föreningen
Två invändiga cykelrum för parkering/laddning ca 84 platser.
240st cykelplatser utomhus.
Två barnvagn/rullstolsrum, ett i vardera hus.
I området finns förskola, gym, padelhall och utepadelbanor, löpslingor, utegym, restauranger, caféer och bar. Endast några hundra meter från området ligger Entré Båstad med stormarknad, apotek, sportshop, kött och fiskbutik, blomsterhandel m.m.
Havet med sandstrand och badbrygga nås på ca 10 minuters promenad liksom skog och natur. En kort cykeltur på 15 min tar dig till Båstads centrum med sitt stora service och nöjesutbud. Flera restauranger och hotell i Båstad med god standard och här finns flera mysiga caféer.

































